Sliding
LET THE BOUNDARY DECIDE WHEN TO EXIST
Because not every space wants to stay still.
Let it open. Let it fold away.
Let it breathe when it wants to.
Forget fixed. Forget final. This is architecture that moves with you. The Slide system lets space stretch,shift, and breathe quietly and beautifully. Panels glide without effort. Tracks vanish into the structure. And boundaries? They’re there when you need them, gone when you don’t. It’s scale without bulk. Detail without noise. Movement made effortless.
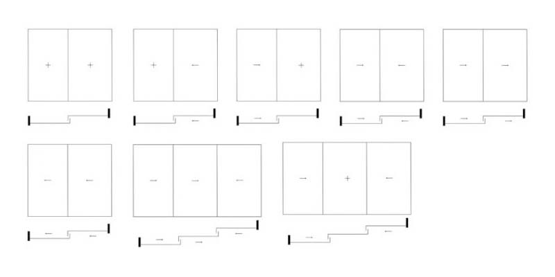
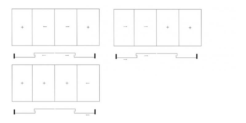
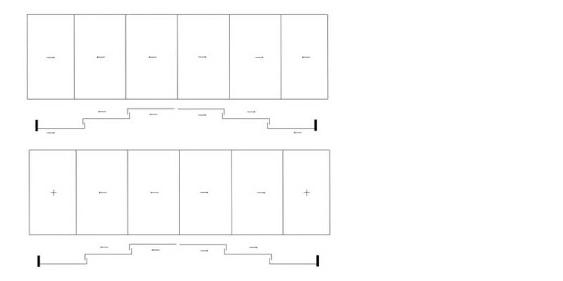
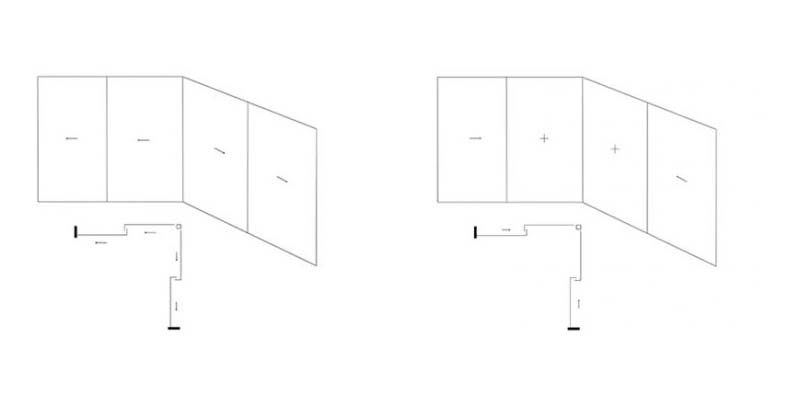
Typologies
Opening Possibilities


















